/

Wohnheim KJSW München

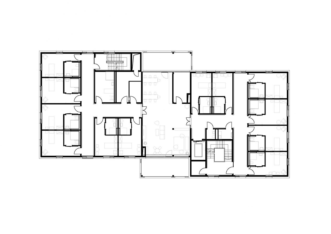
Das Wohnheim für Menschen mit Beeinträchtigung. in der Forstenrieder Allee in München gliedert sich in ein dreigeschossiges Volumen zur Straße hin und einen viergeschossigen Körper im hinteren Bereich, die ineinander verzahnt sind. Die Höhe der Baukörper orientiert sich an den Nachbargebäuden und staffelt sich entsprechend der bestehenden Bauten des KJSW zur Straße hin ab. Es entsteht ein klar ablesbarer, kompakter Baukörper, der einen optimalen Betrieb als Wohnheim ermöglicht. Der Neubau umfasst drei Wohngruppen à 12 Personen, die jeweils im Erdgeschoss, 1. und 2. Obergeschoss untergebracht sind. Außerdem entstehen neun 1-Zimmer-Apartments für Angestellte des KJSWs im zurückspringenden 3. Obergeschoss.
Im Übergangsbereich zwischen den beiden Volumen befindet sich das Zentrum des Gebäudes; ein großzügiger Wohnbereich zum gemeinsamen Kochen, Essen und für die Freizeitnutzung. Dieser wird im Norden und Süden über raumhohe Verglasungen und vorgelagerte, überdachte Terrassen bzw. Loggien zum Außenraum hin erweitert.

Im Übergangsbereich zwischen den beiden Volumen befindet sich das Zentrum des Gebäudes; ein großzügiger Wohnbereich zum gemeinsamen Kochen, Essen und für die Freizeitnutzung. Dieser wird im Norden und Süden über raumhohe Verglasungen und vorgelagerte, überdachte Terrassen bzw. Loggien zum Außenraum hin erweitert.

Auftraggeber: Katholisches Jugendsozialwerk München e. V.
Leistungsphasen: Lph 1-8 n.HOAI
BGF: ca. 3.600 m²
Realisierung: 2023-2025

Feuerwehr Lahr

Wohnungsbau u. Einzelhandel in Oberschleissheim

Ateliers München

Bildungszentrum Niederstetten